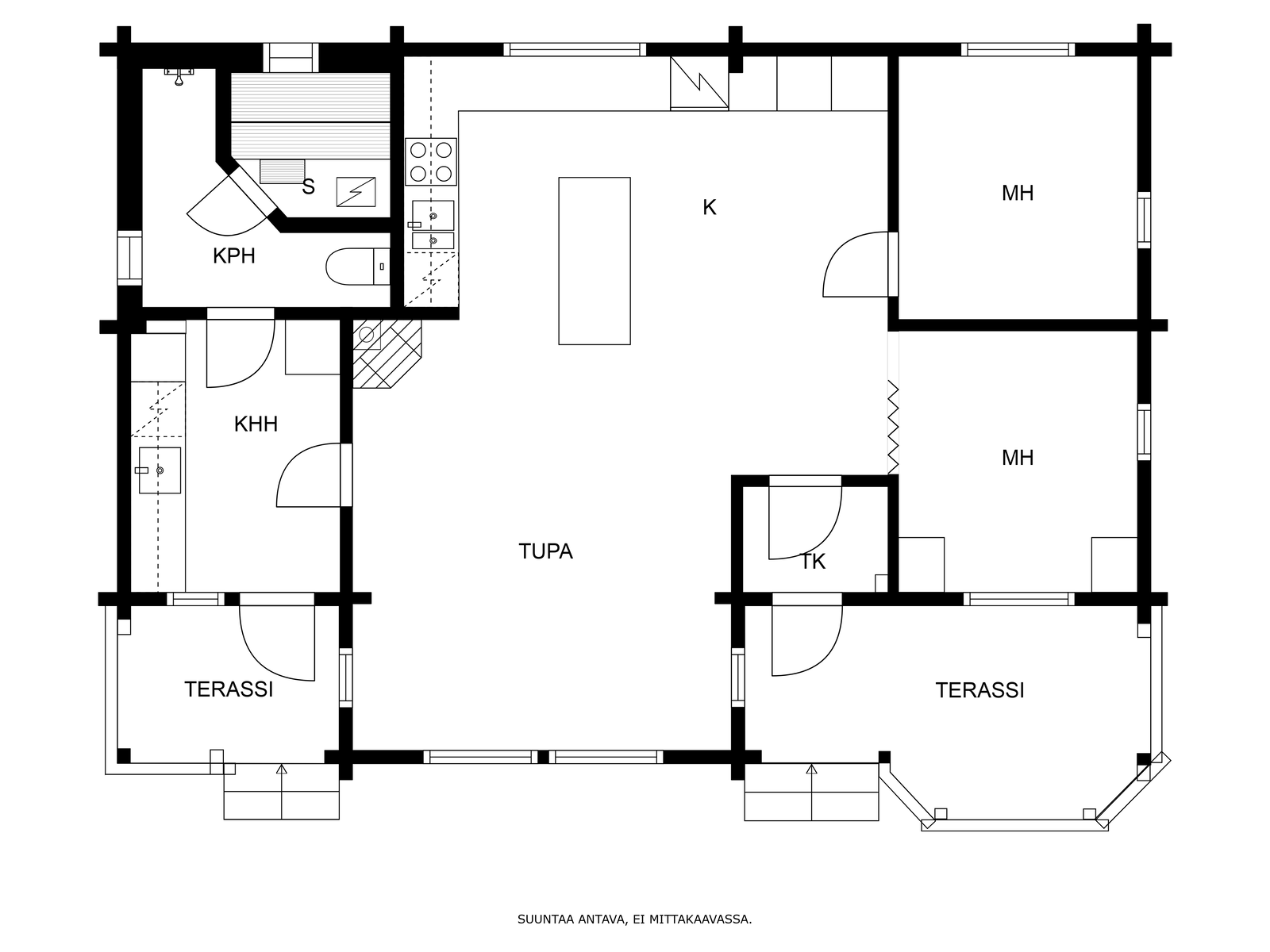
Omakotitalo 3 H + K+ S + PH + KHH + terassi
Pakarilahdentie 7b, Ristijärvi, Ristijärvi
Hinta
115 000 €
Koko
70.0 m²
Vuosi
2012
Myytävänä Ristijärvellä uudehko hirsitalo!
Kiinteistön pinta-ala on 3,116 ha, sisältää Kontion hirsitalon, pienen metsäpalstan n. 2,6 ha ja Ristijärven Pakarinlahteen rajoittuvan n. 0,056 ha Maa- ja metsätalousalueen. Kohde soveltuu ympäri vuotiseen asumiseen tai vapaa-ajan käyttöön.
Uudehko hirsitalo on valmistunut v. 2012, sen kokonaispinta-ala on 74 m2, sisältäen olohuoneen, kaksi makuuhuonetta, kodinhoitohuone, pesuhuone/WC, sauna ja kaksi katettua terassia sekä ison n.18 m2 kattamattoman terassin. Päärakennus on muutettu v. 2022 kaavamuutoksella vakituiseksi asunnoksi.
Pihapiiriin kuuluu lisäksi iso varastorakennus n. 47 m2, maakellari, kuivakäymälä ja kasvihuone.
Metsäpalstan kokonaispuusto on reilut 200 m 3, josta löytyy myytävää puuta tai polttopuuta omiin tarpeisiin. Kohde on tarkastettu maastossa heinäkuussa 2024.
Kiinteistöön kuuluu pieni Maa- ja metsätalousalue, joka rajoittuu Ristijärveen 20 metrin matkalla. Kohteen rakennusmahdollisuuksia kannattaa selvittää Ristijärven kunnan rakennusvalvonnasta.
Kiinteistöön kuuluu osuus yhteiseen vesialueeseen. Yhteinen vesialue 697-401-876-7 Ristijärven jakokunnan yhteiset vesialueet.
Ostajan vastattavaksi tulevat kaupanvahvistajan palkkio, varainsiirtovero 3 % kauppasummasta ja lainhuutokustannus.
Kysy tarvitessasi lisätietoja ja sovi esittelystä!
puh. 0400 267179 tai
matti.huhtala@rantamokki.fi
Katso kaikki kuvat ja liitteet
https://www.etuovi.com/kohde/21470866
| Yhteystiedot |
|
|---|---|
|
| Kohdenumero | 21470866 |
|---|---|
| Sijainti |
|
| Tyyppi | Omakotitalo |
| Omistusmuoto | Oma |
| Huoneistoselitelmä | 3 H + K+ S + PH + KHH + terassi |
| Asuinpinta-ala m² | 70 m² |
| Yhteensä m² | 74 m² |
| Kerros | 1 |
| Kerroksia | 1 |
| Rakennusvuosi (päättynyt) | 2012 |
| Käyttöönottovuosi | 2012 |
| Vapautuminen | Sopimuksen mukaan |
| Velaton hinta | 115 000 € |
|---|---|
| Myyntihinta | 115 000 € |
| Sauna |
|
|---|---|
| Tulisija | Olohuone varaava takka |
| Yleiskunto | Hyvä |
| Lisätietoa kunnosta | Hyvässä kunnossa oleva uudehko asunto |
| Lämmitysjärjestelmän kuvaus | Puu, sähkö, ilmalämpöpumppu |
| Videoesittelyt |
| Asunnon tilat ja materiaalit |
|
|---|---|
| Katto |
|
| Keittiön kuvaus |
|
| Kylpyhuoneen kuvaus |
|
| Saunan kuvaus |
|
| Kodinhoitohuoneen kuvaus |
|
| Olohuoneen kuvaus |
|
| Makuuhuoneiden kuvaus |
|
| Kiinteistötunnus/laitostunnus | 697-401-129-57 |
|---|---|
| Kortteli/kiinteistön nimi | Nummilehto |
| Tontin pinta-ala | 31160 m² |
| Tontin omistus | Oma |
| Lisätietoja rakennusoikeudesta | Ristijärven kunta/ rakennusvalvonta |
| Lisätietoa kaavoituksesta | Iijärven-Ristijärven rantaosayleiskaava osittainen muutos, kaavamerkintä =A1 uusi asuinrakennus |
| Palvelut | Ristijärvi 2 km |
|---|---|
| Liikenneyhteydet | Oma auto Ristijärvi 2 km Kajaani 45 km |
