Mökki tai huvila Mökki + lisärakennukset

Aitolammentie 3, Ylivuokki, Suomussalmi

Hinta
29 500 €

Koko
28.0 m²

Vuosi
1993

Suomussalmen Hietajärvellä hyvässä kunnossa oleva vapaa-ajan kiinteistö isolla tontilla; mökki ja talousrakennukset.

Kohde sopii erinomaisesti metsästys-, kalastus-, retkeily-, marjastus- ja vapaa-ajankohteeksi. Tontin ympärillä laajat valtionmaat.

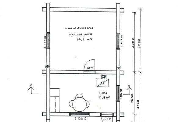
Mökki on valmistunut vuonna 1993, sitä on laajennettu v.1996, yhteensä n. 28 m2, se on rakennettu pyöröhirrestä. Rakennus käsittää keittiön, tuvan ja n. 5 m2 katetun verannan. Lisäksi kohteeseen kuuluvat rantasauna n. 9,9 m2 m2 ja veranta n. 3 m2, rakennettu v.1997, aurinkoenergia-/pesu-/pumppuhuone n. 4m2, valmistunut v. 2022, varasto n.13 m2, kuivakäymälä ja maakellari.

Metsäpohjainen tontti on 10 000 m2. Sillä on rantaviivaa n. 95 m Kotalampeen. Tontilla löytyy puuta lämmitykseen ja vaikka myyntipuuksi.

Kohteen sähköenergia tuotetaan omilla 990 watin aurinkopaneeleilla. Akkukapasitetti on 2x 12v/ 260Ah. Pesuvesi nostetaan lammesta pumppuhuoneeseen, jonka toisella puolella on astioiden pesupaikka ja toisella puolen suihkuhuone.

Myytävällä kohteella on osuus yhteiseen vesialueeseen 777-411-876-3 yht. Vesialueet Hietajärvessä, Hietajoessa, Särkijärvessä,Kota-,Viita- ja Aitolammissa ja yhteinen vesialue 777-876-1-0 Vuokin lohkokunta.

Ostajan vastattavaksi tulevat kustannukset kaupanvahvistajan palkkio, varainsiirtovero 3 % kauppahinnasta ja lainhuutokustannus.

Kysy tarvitessasi lisätietoja ja sovi esittely Matti Huhtala
0400 267179 tai
matti.huhtala@rantamokki.fi

Katso kaikki kuvat ja liitteet
https://www.etuovi.com/kohde/20748648

Yhteystiedot
  • Matti Huhtala
  • LKV Rantamökki Oy
  • matti.huhtala@rantamokki.fi
  • +358400267179
Matti Huhtala

Kohdenumero20748648
Sijainti
  • Ylivuokki
  • Aitolammentie 3
  • 89840
  • Suomussalmi
TyyppiMökki tai huvila
OmistusmuotoOma
HuoneistoselitelmäMökki + lisärakennukset
Asuinpinta-ala m²28 m²
Yhteensä m²28 m²
Pinta-alan perusteTarkistusmitattu
Lisätietoja pinta-alasta- päärakennus 28 m² ja katettu terassi n.5 m²
Kerros1
Kerroksia1
Rakennusvuosi (päättynyt)1993
Käyttöönottovuosi1993
VapautuminenSopimuksen mukaan

Velaton hinta29 500 €
Myyntihinta29 500 €

Sauna
  • oma sauna
TulisijaKamiina
YleiskuntoTyydyttävä
Lisätietoa kunnostaHyvässä kunnossa olevat rakennukset. Mökki laajennettu v. 1996
Lämmitysjärjestelmän kuvausPuu, muu
Videoesittelyt

Asunnon tilat ja materiaalit
  • Pääasiallinen rakennusmateriaali: hirsi
Katto
  • harja
  • pelti
Keittiön kuvaus
  • Lattiamateriaalit: lauta
  • Seinämateriaalit: puu
  • Työtaso: laminaatti
  • Liesi: kaasuliesi, puuliesi
  • Jääkaappi ja pakastin: jääkaappi
Kylpyhuoneen kuvaus
  • Varusteet: suihkukaappi
  • erillinen suihkutila
WC-tilojen kuvaus
  • ulkokäymälä
Saunan kuvaus
  • Lattiamateriaalit: betoni
  • Seinämateriaalit: puu
Olohuoneen kuvaus
  • Lattiamateriaalit: lauta
  • Seinämateriaalit: puu

Kiinteistötunnus/laitostunnus777-411-12-30
Kortteli/kiinteistön nimiKotarinne
Tontin pinta-ala10000 m²
Tontin omistusOma

PalvelutSuomussalmi 77 km Oulu 278 km Kajaani 148 km
LiikenneyhteydetOma auto