Omakotitalo omakotitalo ja vapaa-ajan asunnon rakennuspaikka
Itäkyläntie 441, Itäkylä, Lappajärvi
Hinta
119 000 €
Koko
105.0 m²
Vuosi
1985
Omakotitalo n. 2,7 ha omarantaisella tontilla. Rannassa omakotitalon/vapaa-ajan asunnon rakennuspaikka.
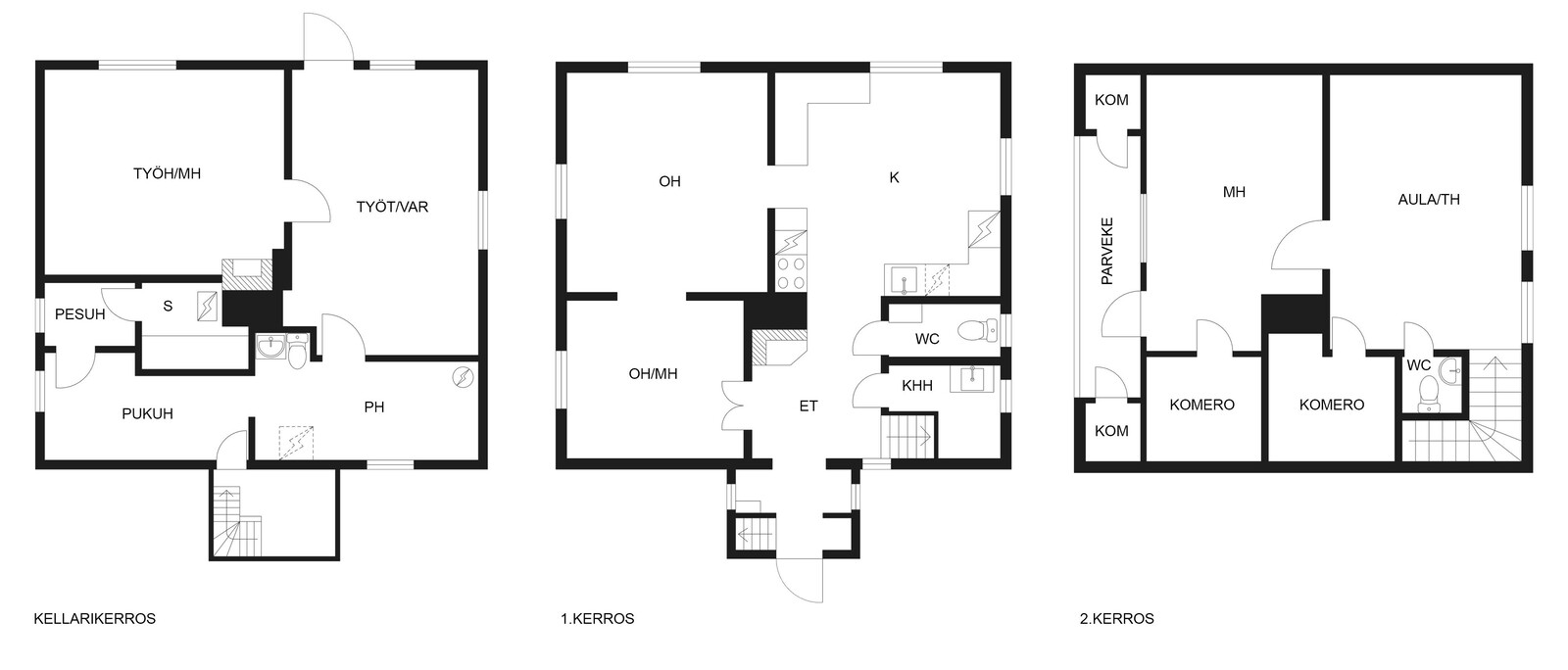
Kolmikerroksinen päärakennus on valmistunut v. 1985. Asuintilaa on n. 105 m2. Alakerta n. 72 m2; keittiö, iso kaksi osainen olohuone, WC/pesutila ja aula. Yläkerta n. 33 m2; makuuhuone, oleskelutila, WC ja parveke. Kellarikerros n. 72 m2; sauna/pesuhuone, KHH, varasto/työtila ja askartelu/etätyöhuone. Lisäksi päärakennuksen yhteyteen kuuluu kaksi ulkovarastoa ja puuliiteri. Hyvin hoidettu n. 0,2 ha tontti; nurmikkoa ja erilaisia istutuksia.
Kohteeseen kuuluu metsää n. 0,8 ha, lehtipuuvaltaista kasvatusmetsää ja havupuuvaltaista taimikkoa. Noin 50 m3 puuta, esim lämmitystarpeisiin.
Noin 1,5 ha pelto on vuokralla suullisella sopimuksella. Lappajärven rannassa on vapaa-ajantontti n. 0,2 ha, jolla vanhat mökki ja lato.
Kiinteistöllä on voimassa yleiskaava. Lappajärven kunnasta saadun tiedon mukaan rannassa on rakennusoikeutta on 180 k-m² loma-asunnon rakennuspaikkana ja vähintään 250 k-m² pysyvän asunnon rakennuspaikkana.
Päärakennukseen on tehty viimeisen kymmenen vuoden aikana paljon remonttia ja perusparannuksia. Lista tehdyistä töistä lisätiedoissa.
Talon lämmitys: öljytäytteiset sähkölämmityspatterit, ilmalämpöpumppu, kaksi varaava tulisijaa, sähköinen lattialämmitys kellarikerroksessa.
Kohteella on sähkö- ja vesiliittymät.
Kohteesta on saatavilla kuntoraportti, jonka saa kysyttäessä.
Ostajan vastattavaksi tulevat kustannukset: kaupanvahvistajan palkkio, varainsiirtovero 3 % kauppasummasta ja lainhuutokustannus.
Kysy tarvitessasi lisätietoja ja sovi esittely
Matti Huhtala
puh. 0400 267179 tai
matti.huhtala@rantamokki.fi
Katso kaikki kuvat ja liitteet Etuovi.
https://www.etuovi.com/kohde/9555163
| Yhteystiedot |
|
|---|---|
|
| Kohdenumero | 9555163 |
|---|---|
| Sijainti |
|
| Tyyppi | Omakotitalo |
| Omistusmuoto | Oma |
| Huoneistoselitelmä | Omakotitalo ja vapaa-ajan asunnon rakennuspaikka |
| Asuinpinta-ala m² | 105 m² |
| Yhteensä m² | 177 m² |
| Lisätietoja pinta-alasta | Kohdetta ei ole tarkistusmitattu alakerta n. 72 m², yläkerta n. 33 m², kellarikerros n. 72 m², sauna + pesuh. + HH + varasto / työtila + askartelu / etätyöhuone |
| Kerros | 1 |
| Kerroksia | 3 |
| Rakennusvuosi (päättynyt) | 1985 |
| Käyttöönottovuosi | 1985 |
| Vapautuminen | Heti |
| Velaton hinta | 119 000 € |
|---|---|
| Myyntihinta | 119 000 € |
| Sauna |
|
|---|---|
| Tulisija | Alakerrassa ja kellarin askarteluhuoneessa |
| Tilojen kuvaus | Siivouskomero, parveke etelään |
| Yleiskunto | Hyvä |
| Lämmitysjärjestelmän kuvaus | Puu, sähkö, ilmalämpöpumppu |
| Videoesittelyt |
| Asunnon tilat ja materiaalit |
|
|---|---|
| Katto |
|
| Keittiön kuvaus |
|
| Kylpyhuoneen kuvaus |
|
| WC-tilojen kuvaus |
|
| Saunan kuvaus |
|
| Kodinhoitohuoneen kuvaus |
|
| Olohuoneen kuvaus |
|
| Makuuhuoneiden kuvaus |
|
| Säilytystilojen kuvaus ja lisätiedot | 2 vinttikomeroa |
| Kiinteistötunnus/laitostunnus | 403-402-6-44 |
|---|---|
| Kortteli/kiinteistön nimi | Kielaanranta |
| Tontin pinta-ala | 27380 m² |
| Tontin omistus | Oma |
| Lisätietoja rakennusoikeudesta | Rakennusoikeutta on 180 k-m² loma-asunnon rakennuspaikkana ja vähintään 250 k-m² pysyvän asunnon rakennuspaikkana. |
| Palvelut | Lappajärvi 9 km |
|---|---|
| Lisätietoa palveluista | Golf-kenttä n. 8 km |
| Koulut | Lappajärvi 8 km koulukeskus ja liikmuntakeskus |
